2025年10月12日
契約感謝!『 都会の田舎 生駒市高山町』中古住宅300万円❣ 【古民家の里山・眺望の良さ・家庭菜園ができる広さ】・が魅力です!
契約感謝‼
都会の田舎〜奈良県生駒市高山町の古民家を売り出します。
母屋は大和棟〜かや葺きの屋根にブリキが葺いてあり、
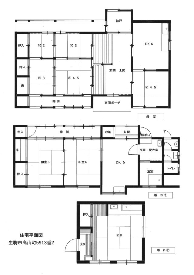
土地は、約180坪〜平家の母屋と離れが建っています。
市街化調整区域ですが、古家が建っているため、新たに建築も可能です。
又、隣接農地約150坪を無償で賃借が出来るようになりました。


敷地から東側の眺望です

母屋

離れ



![謙さんの[facebook]](https://www.kirishima-j.co.jp/wp-content/themes/kirishima/images/f-bn-01.jpg?20221031)







